Quadrilocale in vendita

Gricignano Di Aversa, Via aversa
€ 137.000
4 locali 4 locali
130 Mq 130 Mq
1 bagno 1 bagno

Quadrilocale in vendita

Gricignano Di Aversa, Via aversa

Descrizione annuncio

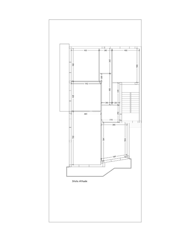
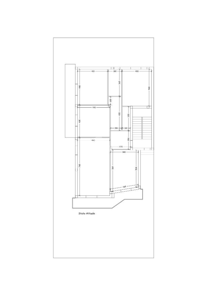
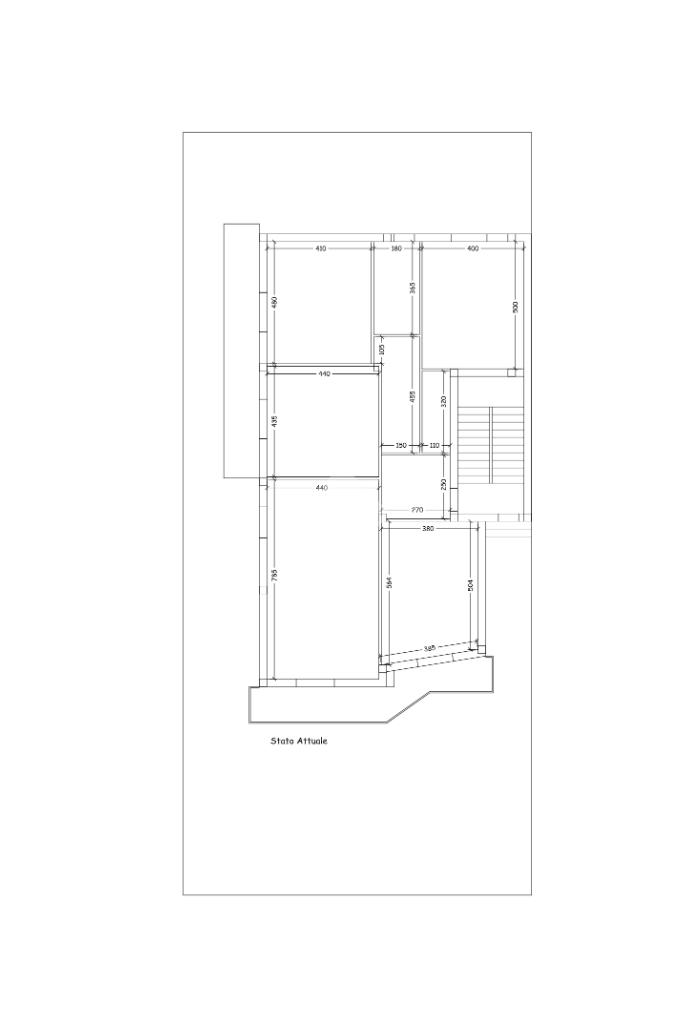
Nel comune di Gricignano di Aversa, proponiamo in vendita appartamento di 130 mq posto al secondo piano di un fabbricato composto da sole tre unità abitative, contesto tranquillo e riservato. L’immobile si compone di un’accogliente zona giorno con cucina e salone open space, ambiente luminoso e funzionale; la disposizione interna comprende tre camere da letto, ideali per famiglie o per chi necessita di spazi aggiuntivi, e un bagno padronale e un ripostiglio ad uso lavanderia. Completano la proprietà due balconi e un posto auto all’interno del cortile. La soluzione rappresenta un’ottima opportunità abitativa per chi desidera indipendenza e comodità, in un piccolo contesto condominiale. Si informa che sono in fase di prossima deliberazione lavori straordinari di ristrutturazione esterna dello stabile, comprendenti rifacimento della facciata, installazione di cancello automatico, tinteggiatura delle ringhiere, rifacimento della guaina del terrazzo e ripristino del tetto. La quota stimata a carico dell’unità immobiliare è pari a circa € 15.000/20.000, importo da considerarsi aggiuntivo rispetto al prezzo di vendita richiesto.

È possibile procedere all’acquisto dell’immobile anche prima dell’esecuzione dei lavori, con eventuale accollo della relativa spesa da parte dell’acquirente.

Mostra tutto

Nelle vicinanze

Trasporto pubblico Trasporto pubblico
Aversa Centro
Aversa Centro
1,2 Km
Aversa Ippodromo
Aversa Ippodromo
2,5 Km
stazione di Aversa
stazione di Aversa
960 m
Gricignano-Teverola
Gricignano-Teverola
2,5 Km
Trasporto pubblico
1,1 Km
Scuole Scuole
Scuole
250 m
Liceo Scientifico Enrico Fermi
1,2 Km
Scuola Primaria San Michele
1,2 Km
Liceo Classico Domenico Cirillo
1,3 Km
Scuola Media Gaetano Parente
1,7 Km
Farmacia Farmacia
Farmacia Cennamo
430 m
Farmacia Lauro
770 m
Farmacia Dei Platani
1,7 Km
Farmacia
1,7 Km
Ospedali Ospedali
Ospedale Marines USA
2,8 Km
Ospedale San Giuseppe Moscati
2,8 Km
Supermercati Supermercati
Sigma
710 m
EuroSpin
890 m
MiniMarket
910 m
SuperDay
1,6 Km
Decò
2,2 Km
Negozi Negozi
Prenatal
1,7 Km
Il Dolce Sapore
2,2 Km
Petrella
2,2 Km
Frankie Shoes
2,2 Km
Bar Bar
Bar Diaz
1,5 Km
Caffetteria Pozzi
1,6 Km
Palumbo
1,7 Km
Life Cool Bar
1,8 Km
Io Tu E Boh!?
1,8 Km
Ristoranti Ristoranti
The meat house
700 m
Country House
810 m
Ristorante Pizzeria "le Piramidi"
930 m
Braciami
1,4 Km
Pizzeria da Castrese
1,6 Km
Mostra tutto

Caratteristiche

Rif.:
61139954
Piano:
2 di 3 (ultimo Piano)
Posti auto:
1
Balconi:
2
Camere da letto:
3
Condizionamento:
Assente
Mostra tutto
Prezzo Prezzo
€ 137.000
Rata mutuo Rata mutuo
€ 646 / mese
Spese annue Spese annue
€ 0
Proponi il tuo prezzoProponi il tuo prezzo
Immobile valutato con T·Valuta

Classe Energetica

F
F
F
F
F
F
F
F
F
EP globale non rinnovabile:
100.00 kW h/m² anno
EP globale rinnovabile:
100.00 kW h/m² anno
EP invernale del fabbricato:
EP estiva del fabbricato:
Anno di costruzione:
1990
Riscaldamento:
Assente

Ti interessa visionare l'immobile?

Fissa un appuntamento  Fissa un appuntamento

Richiedi informazioni

Clicca su Leggi per aprire l'informativa
* Questi campi sono obbligatori

Calcola il tuo mutuo

Semplice e senza impegno
Anticipo

( % )
Mutuo

( % )

pochi semplici passi

inserisci i tuoi dati
Questionario completato
Grazie per aver richiesto un appuntamento senza impegno con un nostro Consulente del Credito e Assicurativo.

Hai inserito correttamente tutti i dati necessari e a breve riceverai una e-mail con un link da convalidare per inviare i tuoi dati.
Affiliato
Studio San Marcellino Frignano D.I.
Via San Salvatore, 5 81032 Carinaro (CE)

Il nostro staff


  • Antonio Picone
    Collaboratore

  • Francesca Russo
    Responsabile

  • Francesco Sauco
    Affiliato
Via San Salvatore, 5 81032 Carinaro (CE)
Zona: Carinaro - Gricignano D'Aversa
Mostra su mappa
Affiliato
Studio San Marcellino Frignano D.I.
Via San Salvatore, 5 81032 Carinaro (CE)

2026 Tecnocasa Franchising S.p.A. - P. IVA 08365160152 - Via Monte Bianco 60/A 20089 Rozzano (MI). Ogni agenzia ha un proprio titolare ed è autonoma. Privacy policy | Policy utilizzo | Cookie policy